Betz Bau HT GmbH - Roßfelder Straße 65/5 - 74564 Crailsheim - Telefon: 07951-297850 - E-Mail: info@betzbau.de - IMPRESSUM

Familie_A

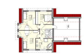
Betz Bau HT  -  Familie A Ansicht Betz Bau HT  -  Familie A Ansicht Betz Bau HT  -  Familie A Ansicht Betz Bau HT  -  Familie A Grundriss EG Betz Bau HT  -  Familie A Grundriss DG
Merkmale * typisches Einfamilienhaus * 2 große Kinderzimmer * zusätzliches Zimmer im EG * Erker mit Satteldach
Abmessung Länge 10,75 m Breite 8,75 m Kniestock 0,50 m Dachneigung 45°
Wohnfläche EG 73 m² DG 65 m² --------------------- GESAMT 138 m²
Betz Bau HT  -  Familie A Grundriss KG
ERDGESCHOSS
DACHGESCHOSS
KELLERGESCHOSS