Betz Bau HT GmbH - Roßfelder Straße 65/5 - 74564 Crailsheim - Telefon: 07951-297850 - E-Mail: info@betzbau.de - IMPRESSUM

Modern_C

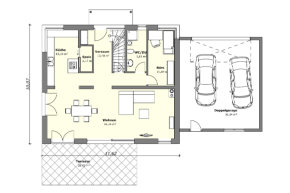
Betz Bau HT  -  Modern C Ansicht Betz Bau HT  -  Modern C Ansicht Betz Bau HT  -  Modern C Ansicht Betz Bau HT  -  Modern C Grundriss EG Betz Bau HT  -  Modern C Grundriss DG
Merkmale * offenes Wohnen im EG * Galerie * große Kinderzimmer * Platz für Ankleide
Abmessung Länge 11,62 m Breite 10,07 m Kniestock 0,75 m Dachneigung 38°
Wohnfläche EG 90 m² DG 81 m² --------------------- GESAMT 171 m²
Betz Bau HT  -  Modern C Grundriss KG
ERDGESCHOSS
DACHGESCHOSS
KELLERGESCHOSS