Betz Bau HT GmbH - Roßfelder Straße 65/5 - 74564 Crailsheim - Telefon: 07951-297850 - E-Mail: info@betzbau.de - IMPRESSUM

Pult_B

Betz Bau HT  -  Pult B Ansicht Betz Bau HT  -  Pult B Ansicht Betz Bau HT  -  Pult B Ansicht Betz Bau HT  -  Pult B Grundriss EG Betz Bau HT  -  Pult B Grundriss DG
Merkmale * 2 Vollgeschosse * keine Dachschrägen * flexible Möblierung * helle Räume
Abmessung Länge 10,0 m Breite 8,0 m Kniestock 2,0/2,7 m Dachneigung 30°
Wohnfläche EG 65 m² DG 60 m² --------------------- GESAMT 125 m²
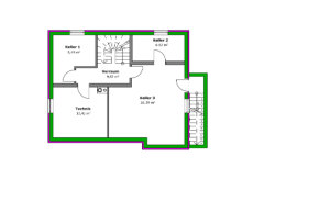
Betz Bau HT  -  Pult B Grundriss KG
ERDGESCHOSS
DACHGESCHOSS
KELLERGESCHOSS