Betz Bau HT GmbH - Roßfelder Straße 65/5 - 74564 Crailsheim - Telefon: 07951-297850 - E-Mail: info@betzbau.de - IMPRESSUM

Kompakt_A

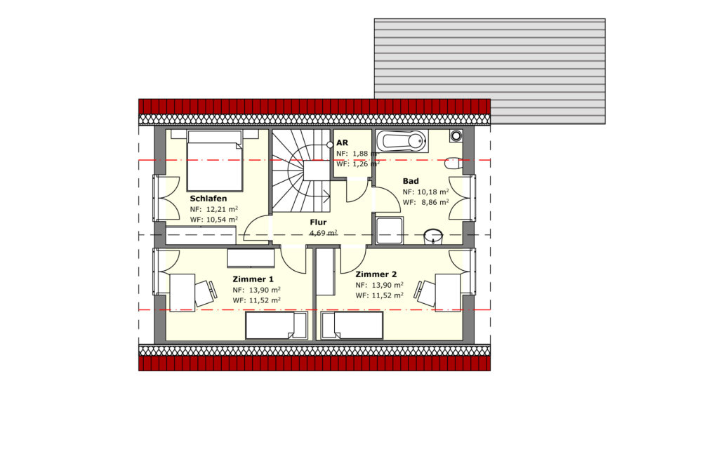
Musterhaus Satteldach Betz Bau HT Betz Bau HT  -  Kompakt A Ansicht Betz Bau HT  -  Kompakt A Ansicht Betz Bau HT  -  Kompakt A Ansicht Betz Bau HT  -  Kompakt A Grundriss EG Betz Bau HT  -  Kompakt A Grundriss DG
Merkmale * kompakte Abmessung * 2 funktionale Kinderzimmer * helle Räume
Abmessung Länge 10,25 m Breite 7,50 m Kniestock 0,75 m Dachneigung 45°
Wohnfläche EG 52 m² DG 48 m² --------------------- GESAMT 100 m²
ERDGESCHOSS
DACHGESCHOSS
KELLERGESCHOSS
mit Keller möglich