Betz Bau HT GmbH - Roßfelder Straße 65/5 - 74564 Crailsheim - Telefon: 07951-297850 - E-Mail: info@betzbau.de - IMPRESSUM

Kompakt_B

Betz Bau HT  -  Kompakt B Ansicht Betz Bau HT  -  Kompakt B Ansicht Betz Bau HT  -  Kompakt B Ansicht Betz Bau HT  -  Kompakt B Grundriss EG Betz Bau HT  -  Kompakt B Grundriss DG
Merkmale * offener Wohn-Essbereich * 2 Kinderzimmer * Satteldach-Erker * wenig Dachschräge
Abmessung Länge 10,0 m Breite 8,0 m Kniestock 1,20 m Dachneigung 38°
Wohnfläche EG 62 m² DG 55 m² --------------------- GESAMT 117 m²
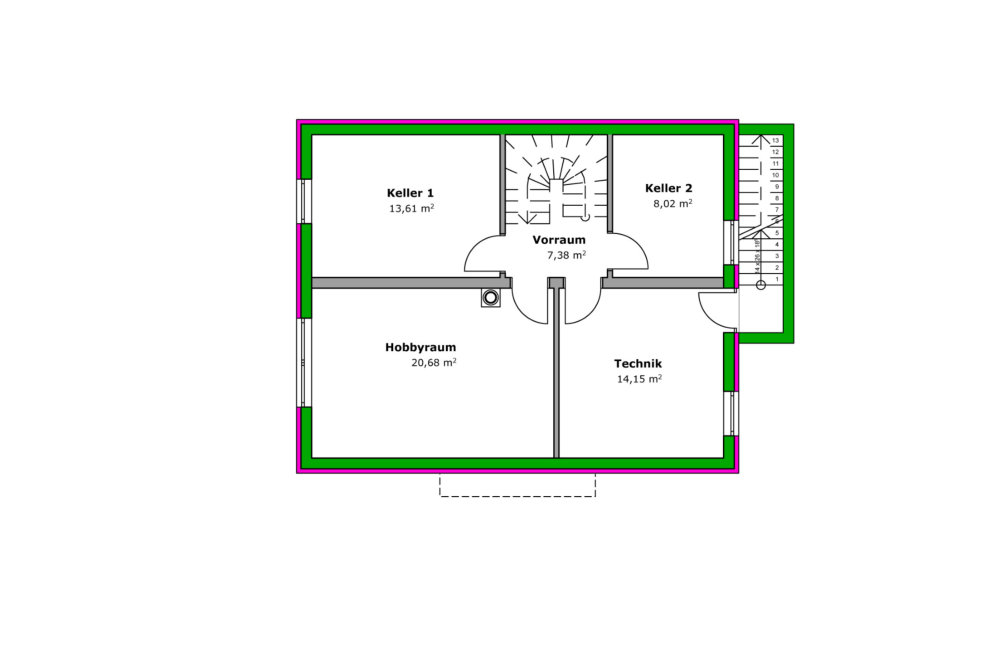
Betz Bau HT  -  Kompakt B Grundriss KG
ERDGESCHOSS
DACHGESCHOSS
KELLERGESCHOSS